Located in the sought after village of Allerthorpe just a short drive away from the market town of Pocklington and all of its amenities, is Victoria Lodge. A spacious four bedroom family home which is offered to the market with the added benefit of no onward chain.
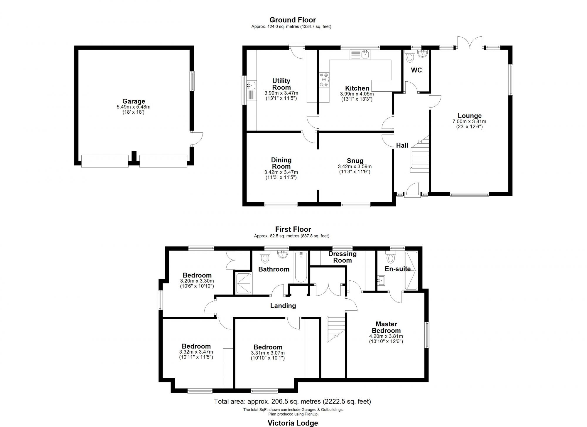
As you enter the property you find yourself in a spacious hallway with the stairs to the first floor ahead and the first of two reception rooms to your left.
The first reception room is currently set up as a formal sitting room but could be utilised as an office if desired. The adjacent dining room provides space for a large table with chairs and leads into the utility room which is adjacent to the kitchen, giving the downstairs layout a lovely flow.
The utility room comprises two worktops with storage and a stainless steel sink with drainer as well as space for a washer, dryer and fridge freezer. There is also access into the rear garden and onto the driveway available from here.
The kitchen follows and features a U-shaped worktop with storage above and below comprising an AEG double oven, AEG 5 ring gas hob and stainless steel sink with drainer. There is also space for a fridge freezer and a dining table with chairs.
The living room is flooded with natural light thanks to the dual aspect of the room and features a fireplace to its centre. Double doors open onto a patio seating area.
A downstairs w.c completes the ground floor, comprising a w.c and basin.
To the first floor, there are four double bedrooms with the master bedroom benefitting from a walk in wardrobe and en suite comprising a basin with storage below and mirror cupboard above, w.c, walk in shower and chrome heated towel rail.
The family bathroom completes the internal space of the property and comprises a walk in shower, w.c, basin, mirror cupboard, chrome heated towel rail and bath.
Externally there is a private driveway leading to a double garage that provides off street parking for multiple cars. The rear garden is of a good size and fully enclosed with a patio seating area and pond.