£935,000 Guide Price
<p>Set within approximately 4.3 acres of gardens and grounds, is this substantial six-bedroom, two bathroom family home, offering extensive and versatile accommodation arranged over three floors. The property is complemented by a two bedroom annex which has been used as a successful Air B&B, a two bay brick built open fronted garage and a workshop/cart shed. The nearby village of Holme On Spalding Moor offers a range of everyday amenities including shops, public houses, a primary school and local services, with further facilities available in the surrounding market towns. The property is well placed for access to the A614 and A63, providing road links towards York, Hull and the M62 motorway network, making it suitable for commuters seeking countryside living without isolation. This fantastic family home is offered to the market with No Onward Chain.</p>
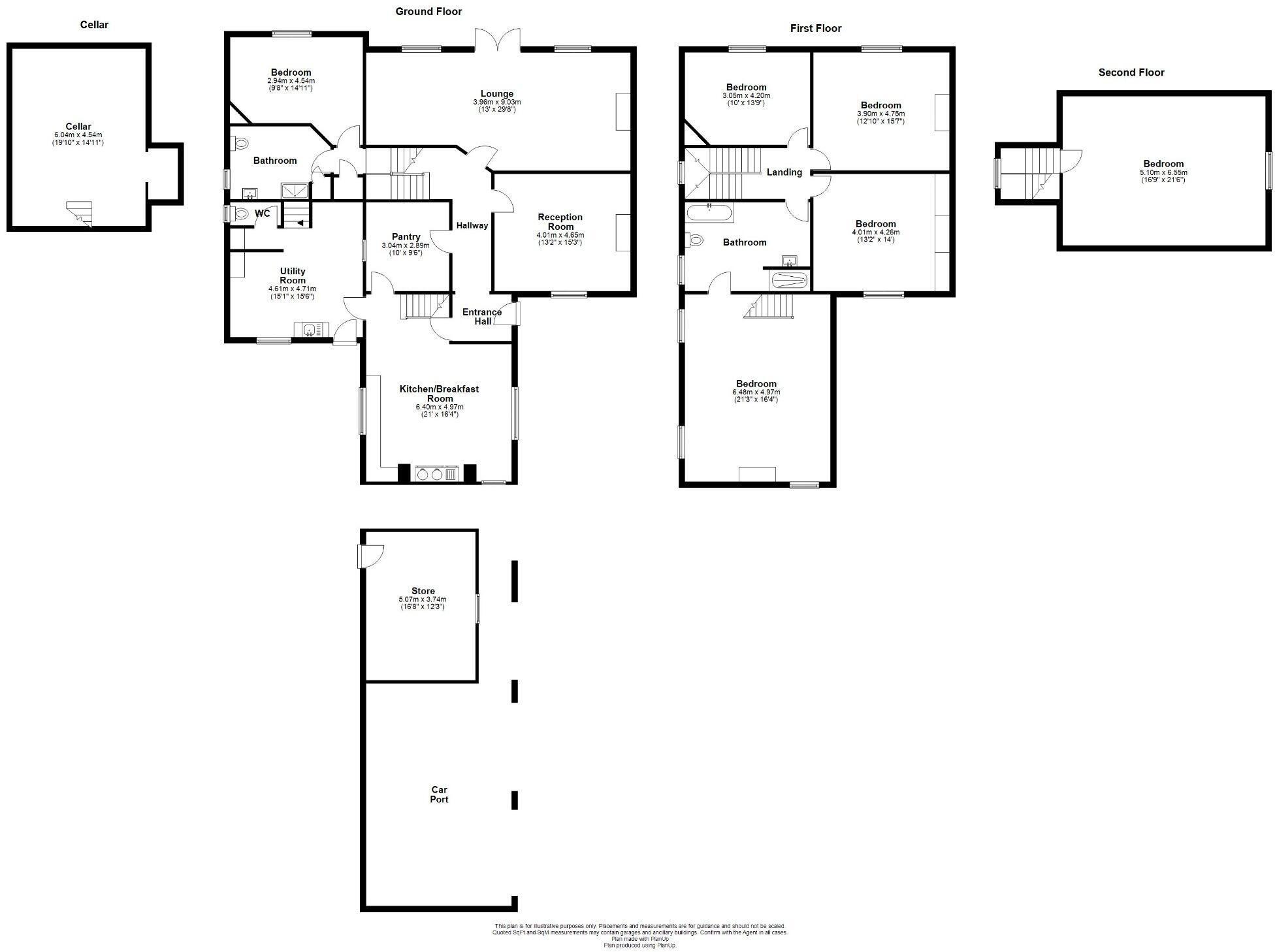
<p>On entering you find yourself in an entrance hall with doors off to all sides. A generous living room at the rear of the property benefits from two large windows and a set of timber French doors which give access to a patio seating area. There is a lovely timber beam to the ceiling and original exposed floorboards throughout. A cast iron open fire with a timber mantle sits at the centre of the room, the perfect addition, especially in the colder winter months. Immediately adjacent you will find the snug which has a log burner at the centre of the room with space to either side for storage. The kitchen/breakfast room is at the heart of the home and is well-proportioned for family dining and entertaining. A pantry sits conveniently off the hallway, while a large utility room provides additional storage and laundry facilities. Stairs lead down to a useful cellar, offering excellent storage or potential as an additional reception room.</p>
<p>Moving up a small flight of stairs you will come across the first bedroom with a cast iron feature fireplace in one corner, whilst a shower room can be found immediately adjacent. On the first floor, a central landing gives access to four good sized bedrooms, including a particularly spacious principal bedroom which has a separate staircase that leads back into the kitchen. A family bathroom comprising bath, walk in double shower, hand basin and low level w/c completes this floor. An impressive bedroom can be found on the second floor which would be ideal as a guest suite, teenager’s retreat or hobby room.</p>
<p>The annex provides nicely arranged accommodation over one floor and comprises of an open-plan kitchen/living room, a separate dining area, two bedrooms including a master bedroom with en-suite and an additional shower room. There is also a pantry, entrance hall and utility room, making it entirely self-contained and suitable for continued holiday letting, dependent relatives or guest accommodation.</p>
<p>Externally, the property is approached via a private drive, owned by the property, over which the nearby cottage and church have a right of way and share responsibility for maintenance. A two-bay brick-built open fronted garage is attached to the main house, providing sheltered parking. The annex benefits from an attached workshop that has planning permission for conversion into a second annex.</p>
<p>The grounds extend to approximately 4.3 acres as shown in the aerial image, comprising gardens, lawns and pasture bordered by mature trees, hedging and a river, creating a peaceful and picturesque setting. A further 10 acres of land to the side of the church are available by separate negotiation, offering additional potential for those seeking more extensive grounds. The church retains access over a small piece of land situated between the river and the house.</p>