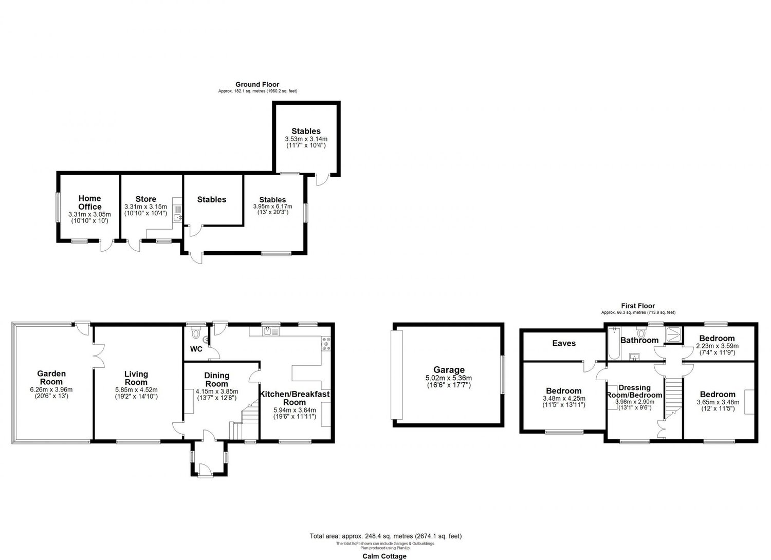
If you are looking for a detached family home, require stables, outbuildings and garaging, then look no further as this delightful property could be exactly what you have been waiting for. Houses of this nature have been rarely seen on the market over the past few years, so a viewing is highly recommended to fully appreciate everything that it has to offer. There is a block of 3.5 acres available by separate negotiation.
On entering you find yourself in a porch which provides the perfect place for the storage of coats and shoes. Beyond is the dining room which provides more than enough space for a good size table and chairs. The living room is on the left hand side and is very spacious. There is an open fire at the centre and a large window to the front that allows natural light to flood in. A single door from here opens into the garden room which has been used as a home office by the current vendors but could be used as another reception room. There is a single door that opens out to the rear garden so it could be the perfect entertaining space during the summer months.
To the other side of the dining room is the open plan kitchen/living area. Within the living area you will see exposed timber beams and a multi fuel burner that sits at the centre of the room, perfect for the colder winter months. The kitchen has a been fitted with a U shaped worktop that doubles up as a breakfast bar and incorporates a composite sink with drainer. There are various appliances including a freestanding American style fridge/freezer, dishwasher and a Rangemaster cooker with a five ring halogen hob over. There is a cloakroom with a w/c and hand basin immediately adjacent to the back door which opens to the back yard.
Moving to the first floor there are three/four bedrooms. The master bedroom has a room immediately before it which could be fitted out as a dressing room or made into a fourth bedroom by putting up a partition wall. There are two further double bedrooms and a family bathroom comprising bath, shower, hand basin with storage below and a low level w/c.
The front garden has been laid to lawn with a gravelled area to one side. There is a lovely water feature, mature shrubs and the septic tank. The rear garden is low maintenance with raised planters to one side. There is a brick built stable block, two stores, one of which has been used as a home office in the past, a timber stable, double garage and a covered lean to. The driveway is secured by electric gates.