If you are looking for a change of lifestyle, like the idea of single storey living and want to be in desirable village close to York, then look no further as this attractive bungalow could be exactly what you have been waiting for. The current vendors have fully modernised this lovely property creating a fusion of open plan living spaces alongside individual cosy rooms, a feature that will surely appeal to the most discerning of purchasers. It is not very often that you see bungalows come to the market within this village, so a viewing is highly recommended to fully appreciate everything it has to offer.
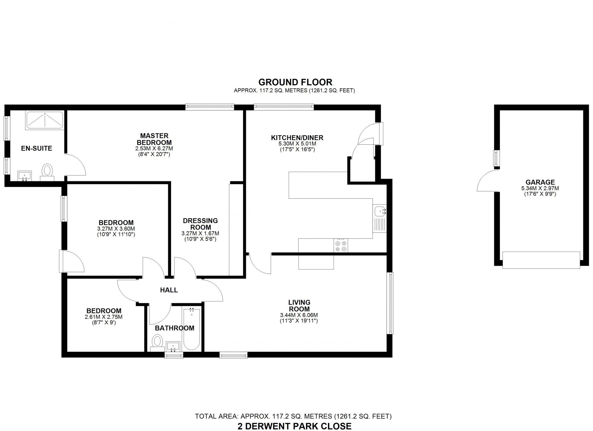
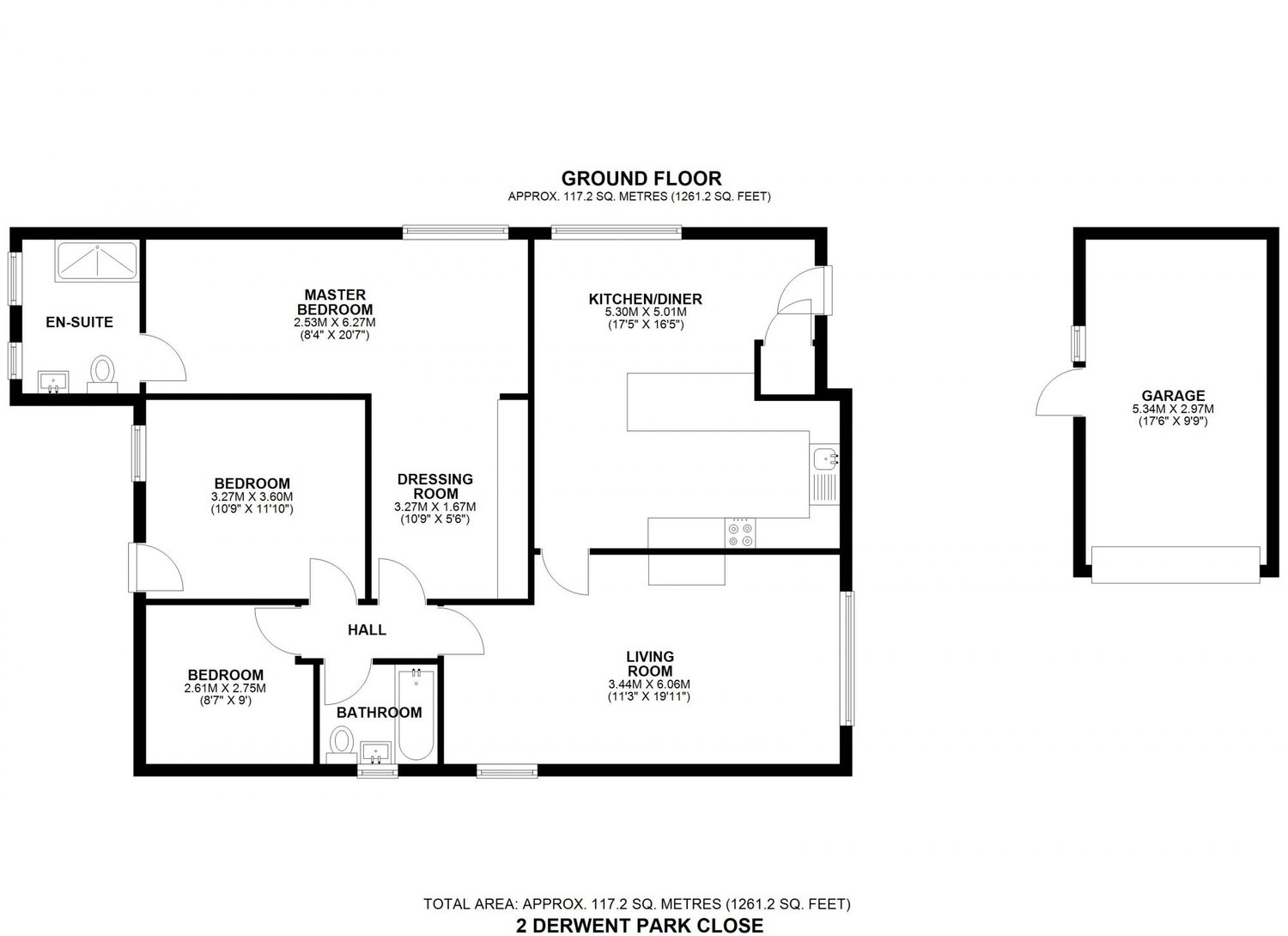
On entering the property you will find yourself in the open plan kitchen/diner which is not only contemporary but spacious. There is a deep storage cupboard immediately adjacent to the front door and space in one corner for a dining table with chairs. The kitchen comprises of a U shaped worktop that doubles up as a breakfast bar, a composite sink with drainer, four ring induction hob, single oven, microwave, boiling tap, dishwasher and a range of storage units.
The living room is a good size with a large window at the far end that allows natural light to flood the room, whilst a multi fuel burner can be found at the centre, the perfect addition especially in the colder winter months. The vendors have installed panelling to this room which adds real character.
Moving through into the master bedroom you will see a full wall of built in wardrobes which have hanging rails, shelves and drawers within. The floating bed is constructed out of steel and is included within the sale as it is fitted to the wall. This room benefits from an en-suite comprising walk in double shower with rainfall shower head, low level w/c, pedestal hand basin and heated towel rail. There are two further double bedrooms, one of which has a door which opens to the rear garden. A family bathroom comprising bath with shower over, low level w/c and hand basin completes the internal accommodation.
Externally the rear garden is mainly laid to lawn with two raised decking areas to either end, perfect for catching the sun at various points within the day. The garden is fully enclosed, so if you have young children or pets then this will certainly appeal. The front has been gravelled and provides parking for multiple cars, whilst a single garage with an electric door provides covered parking or storage. There is an electric gate which can be opened using the built in intercom system which is included within the sale.