A well presented three bedroom semi-detached home, perfectly suited to first time buyers, investors or a growing family seeking additional space. Offered to the market with No Onward Chain, this fantastic property is ready for immediate occupation and early viewing is strongly advised to avoid disappointment.
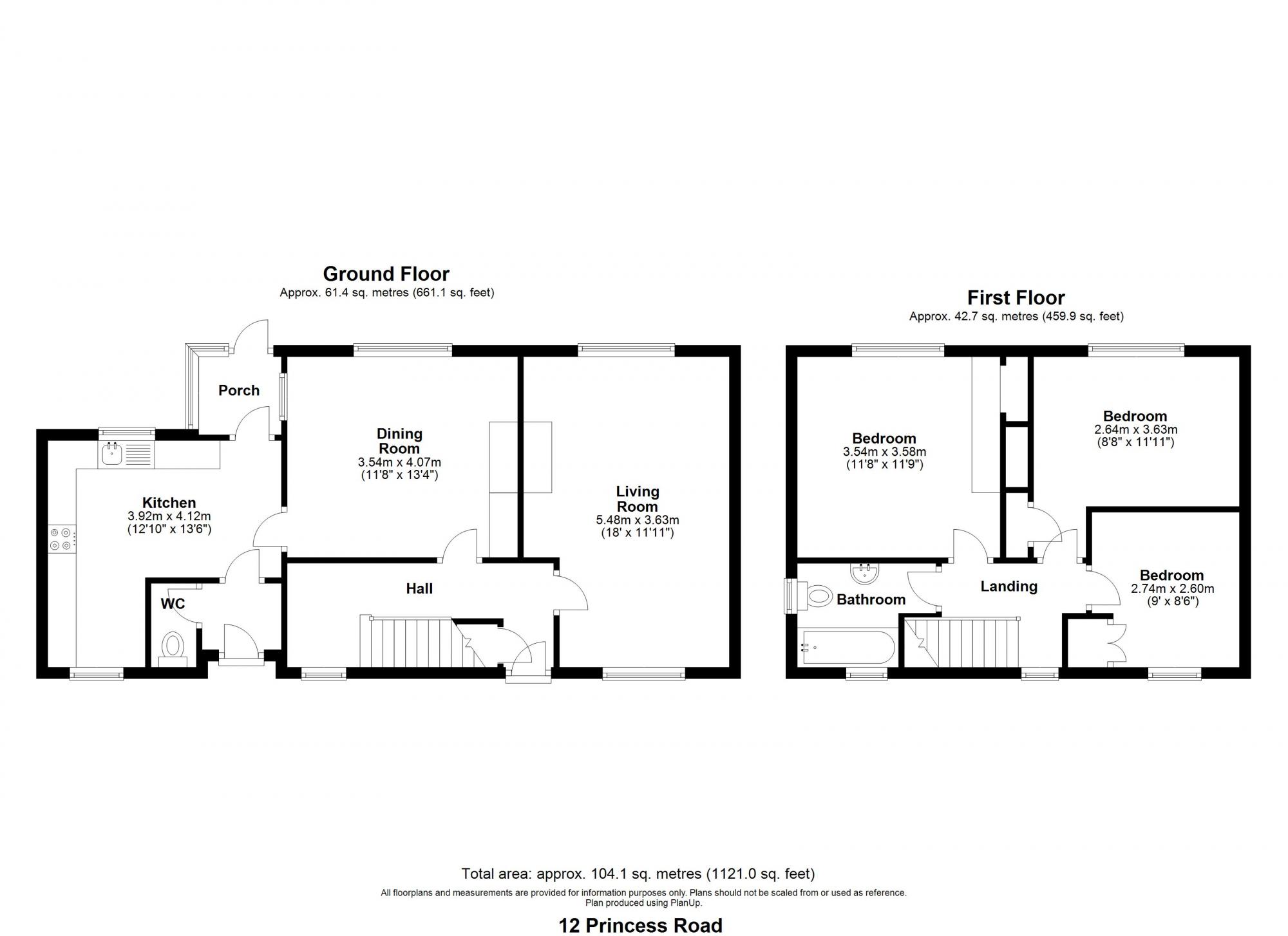
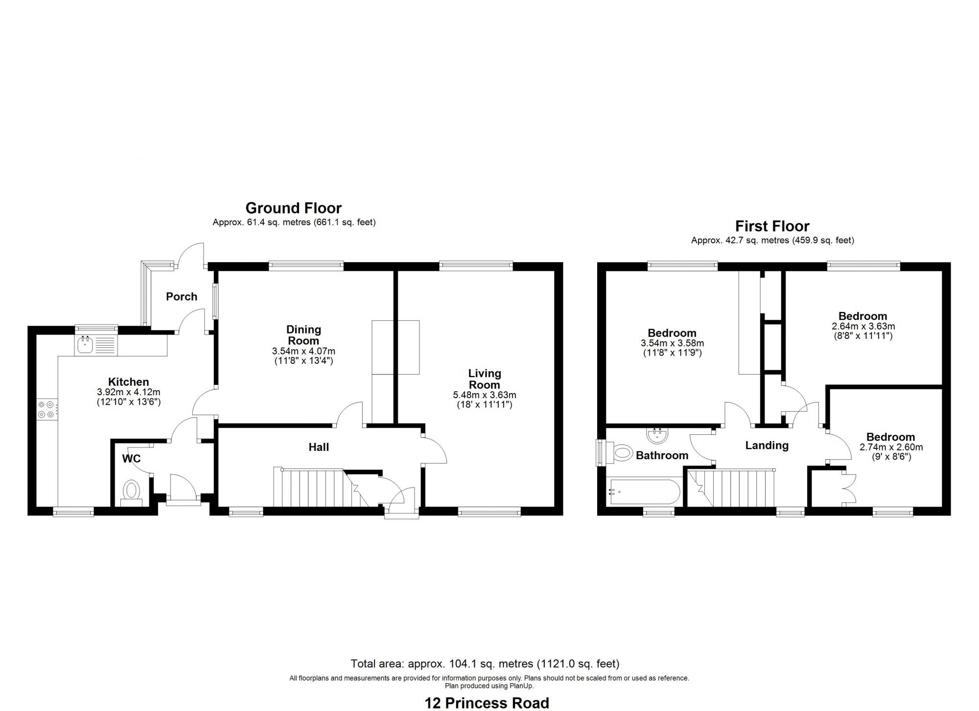
Upon entering through the front door, you are welcomed into a bright entrance hallway. To the left, a generous storage cupboard provides excellent practicality, while to the right sits a light filled and spacious reception room offering an inviting space to relax and unwind.
Continuing through the hallway, you’ll find the dining room, ideally positioned for both everyday family meals and entertaining guests. This leads seamlessly into the modern, well appointed kitchen. Designed with functionality in mind, the kitchen features an L-shaped worktop incorporating a Lamona oven, four-ring hob with overhead extractor and a Lamona stainless steel sink with drainer. There is ample cupboard storage, along with dedicated space for a washing machine and dishwasher. A convenient rear porch sits just off the kitchen, providing access to the garden, while a downstairs W.C completes the ground floor accommodation.
Upstairs, the property offers three well-proportioned bedrooms. The generous principal bedroom benefits from fitted wardrobes, while the remaining two bedrooms also provide useful storage solutions. The family bathroom is fitted with a bath and overhead shower, low-level W.C and pedestal wash hand basin with additional storage below.
Externally, the home enjoys enclosed front and rear gardens, both mainly laid to lawn. The substantial rear garden offers a wonderful space for outdoor entertaining during the warmer months and provides excellent potential for further landscaping, a patio area or even the addition of a summerhouse. The garden can also be accessed directly from the property via the porch for added convenience.
Agents Note: This property is being sold on behalf of a member of RM English.